Semi Oval & Square Shaped 360 degrees Shower Curtain Rod for Bathroom with 1x Front Ceiling Bracket and 2x Back Wall Brackets at Custom Size
The cornice is a complement to the overall look and interior of the premises.
Together with the right curtains, you can achieve the feeling you would like the room to have.
Pay attention to the drawing and product description!
Please right here:
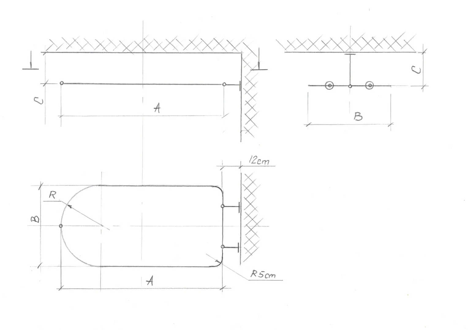
1) How long is your A- the length(A- the long side in centimeters)?
2) Write the distance from ceiling to the Oval(C- length is size of ceiling bracket)?
3) Write the distance from wall to the Oval (size of wall brackets)?
* 1 inch=2.54 cm
204.01 € – 234.68 €Price range: 204.01 € through 234.68 €
Semi oval and square shaped 360 degrees shower curtain rod(rail) for bathroom, fitting and dressing rooms for wall and ceiling mounting.
This model is unique in its shape because it is semi-oval and semi-square. Made to fit the design of the bathtubs of such a shape that are common on the market.
You can easily install it above your bathtub to enclose it with a curtain on all sides so that there are no more splashes outside the bathtub when bathing.
The pipe is strong, material-Stainless steel(mark 304) with different color finish.
The pipe(rod) diameter is 16mm.
This item consist of several parts that are joined very tightly in the brackets(supports).
Complete detail with every fixture for easy assembly.
Custom Size means that you choose your size exactly as you need it.
The only condition is that the B* width (the short side) is a constant value and you can choose exactly how long will be the A* Length (the long side).
To find out more easily see my drawing (picture 8).
B* is width to A* is length
Width = 55 cm. to A* length – 200 cm. maximum
Width = 60 cm. to A* length – 195 cm. maximum
Width = 65 cm. to A* length – 190 cm. maximum
Width = 70 cm. to A* length – 185 cm. maximum
Width* = 75 cm. to A* length – 180 cm. maximum
Width = 80 cm. to A* length – 175 cm. maximum
Width = 85 cm. to A* length – 170 cm. maximum
Width = 90 cm. to A* length – 165 cm. maximum
Width = 95 cm. to A* length – 160 cm. maximum
B* width = 100 cm. to A* length – 155 cm. maximum
Width = 105 cm. to A* length – 150 cm. maximum
Width = 110 cm. to A* length – 145 cm. maximum
Width = 115 cm. to A* length – 140 cm. maximum
B* width = 120 cm. to A* length – 135 cm. maximum
To order, please select your dimension B* width (short side), then write in the Personalisation field how long you want to be the A* Length(long side) in centimeters (1 inch=2.54 cm.).
* You have to choose the distance from ceiling to the oval rod- C* length (how long brackets you need) write in the personalisation field.
* You also can to choose the distance from wall to the oval rod, standard length is 12 cm for wall brackets (how long brackets you need) but you can choose what length you need, so write in the personalisation field.
*The supports(ceiling and wall brackets) cannot be cut because they are threaded! So the construction is stronger and stable. I always make the supports according to the size of customer.*
*Hooks and curtains are not included*
*If you want to buy a Hooks for shower curtain rod, please see my product Shower Curtain Hooks*
https://www.etsy.com/listing/1025219581/steel-shower-curtain-hooksset-for-shower
*Towel hanger and cosmetic shelf are not included in the set, if you want to buy it, you can do it additionally*
https://www.etsy.com/shop/Stelmo2002?ref=seller-platform-mcnav§ion_id=46877048
*The pictures of this product are in Brown Dark color finish, but you can choose which color you want*
* * * * * * * * * * * * * * * * * * * * * * * * * * * * * * * * * * * * * * * * * * * * * * * * * * * * * * * * * * * * * * * * * * * * * * *
If you don’t find a color that suits you, please take a look at my extended catalog:
https://www.etsy.com/listing/1744219785/custom-color-extended-catalog
You can choose a color from the extended catalog and add it to your cart. When a color from the extended catalog is added (purchased) to your cart, it means that your order will be made according to the selected color from the extended catalog.
For further questions please contact me.
“STELMO-2002” company sells mainly abroad! You can view all items and customer reviews from HERE!
Related products
-
Shower Curtain Rods
U Shaped Shower Curtain Rod for Bathroom, Fitting and Dressing room for Wall Montage at Custom Size
153.90 € – 185.60 €Price range: 153.90 € through 185.60 € Select options This product has multiple variants. The options may be chosen on the product page -
Shower Curtain Rods
Square Shaped 360 degrees Shower Curtain Rod for Bathroom, Fitting and Dressing room with Ceiling Brackets
138.05 € – 196.85 €Price range: 138.05 € through 196.85 € Select options This product has multiple variants. The options may be chosen on the product page -
Shower Curtain Rods
L- Shaped Corner Shower Curtain Rod for Bathroom, Fitting and Dressing room for Ceiling Montage with Custom Size
121.69 € – 202.47 €Price range: 121.69 € through 202.47 € Select options This product has multiple variants. The options may be chosen on the product page -
Shower Curtain Rods
L- Shaped Corner Shower Curtain Rod for Bathroom, Fitting and Dressing room for Wall Montage with Custom Size
108.91 € – 174.86 €Price range: 108.91 € through 174.86 € Select options This product has multiple variants. The options may be chosen on the product page













